plus bauplanung
plus bauplanung projekte büro publik peter kontakt instagram

Jugendhaus Klause
Rottenburg am Neckar

plus bauplanung

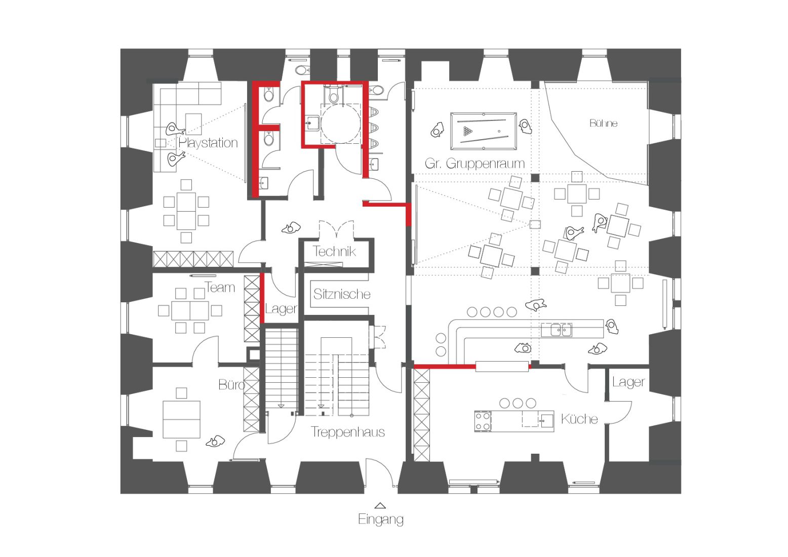
Das Jugendhaus Klause befindet sich in einem historischen und unter Denkmalschutz stehenden Gebäude aus dem 18.Jahrhundert.  Es gehörte damals zum klösterlichen Areal des als „Obere Klause“ bezeichneten, ehemaligen Franziskanerinnenklosters, das auf einer Anhöhe südlich der Altstadt von Rottenburg gelegen ist. Anhand der Baubefunde und der Umbaupläne konnten drei Hauptbauphasen nachgewiesen werden. Erbauungszeit 1764, Umbau von 1920 und 1982.

Ziel der Sanierungsmaßnahme war, die historische Bausubstanz zu erhalten, sowie die Räume im EG, 1.OG und Gewölbekeller hinsichtlich der Nutzung als Jugendhaus baulich zu optimieren.

historisches Natursteingewölbe als Partykeller im UG

Proberäume und Tanzräume im 1.OG

projektdaten

fertigstellung 2020

adresse Jugendhaus an der Klause, Schadenweilerstraße 11, 72108 Rottenburg am Neckar

bauherr Stadt Rottenburg

webseite rottenburg.de

leistungsphasen 1-9

flaeche BGF ca. 2.215 m²

baukosten ca. 625.000 € (KG 300-400, brutto)

fotografie lukasbrenner-fotografie.de

baubeginn 2019

team

Markus Hiller

Markus Hiller

Partner GF

07127 92 07 14

m.hiller@plusbauplanung.de

Markus Hiller

Partner GF

07127 92 07 14

m.hiller@plusbauplanung.de

weitere projekte

369

Oberstufenbau FWS Schwäbisch Gmünd

Schwäbisch-Gmünd

2018

040

Grundschulpavillon Stammheim

Stuttgart

1989

435

Erweiterung Freie Georgenschule Reutlingen

Reutlingen

im bau

522

WB Gymnasium am Güterbahnhof Offenbach

Offenbach am Main

2023

464

Schulkindbetreuung Villa Haßfurt

Haßfurt

2023

alle projekte

Jugendhaus Klause Rottenburg

plus bauplanung

plus bauplanung gmbh
goethestraße 44
72654 neckartenzlingen
info@plusbauplanung.de
07127 92070

impressum cookie einstellungen datenschutz

Diese Seite verwendet Cookies. Mehr Informationen und Einstellungen hier.