plus bauplanung
plus bauplanung projekte büro publik peter kontakt instagram

Wohnsiedlung Laarstrasse
Gelsenkirchen

plus bauplanung

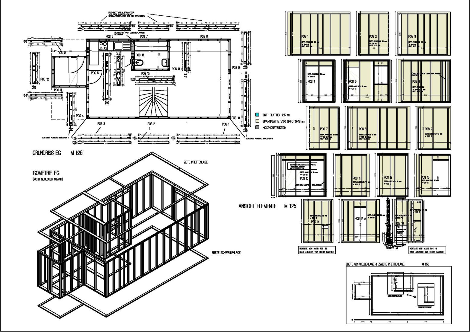
Als Teil der Internationalen Bauausstellung Emscher Park entstanden zwei Wohnbauprojekte zum Eigenbau durch die Bewohner zu sehr bescheidenen Kosten, eines in einem Vorwort von Lünen, das andere in Gelsenkirchen. In beiden Fällen wurden aus Gründen der Wirtschaftlichkeit und der einfacheren Ausführung einfache zweigeschossige Reihenhaustypen umgesetzt.

 

Die Häuser wurden auf Bodenplatten ganz in Holzrahmenbauweise, mit horizontaler Holzverkleidung und leicht geneigten Grünflächen auf Foliendächern erstellt. Die Grundrisse mussten einfach und rechtwinklig sein, die Räume und Verkehrsflächen sinnvoll geplant werden, um den verfügbaren Platz am besten auszunutzen zu können. Jedoch wurde öde Monotonie im Gesamtplan vermieden, indem Varianten der Haustypen und der Hausbreite und auf Wunsch auch zusätzliche Elemente wie Wintergärten oder Abstellschuppen zugelassen waren. Ein in der Vergangenheit häufig genutzter Vorzug des Holzskeletts ist die Möglichkeit, das Obergeschoß über das Erdgeschoß auskragen zu lassen, dadurch können die tiefen Schlafräume einiger Häuser über den knapperen Eingangsbereich herausragen und geschützte Bereiche sowie gegliederte Fassaden bilden. Die Gründächer haben »Schmetterlings«-Form; sie sind zu einer mittigen Ablaufrinne geneigt, speichern jedoch einen Teil des Regenwassers, bevor der Rest abfließt. In diesem Teil des Daches kann leicht ein zentrales Oberlicht über dem Bad eingefügt werden. Die Wirkung des Daches als behütendes, schützendes Element wird am Außenrand durch überstehenden hölzernen Sonnenschutz noch verstärkt. Um die Realisation des Hauses auch für unerfahrene Eigenbauer möglich zu machen, wurde ein Konstruktionssystem aus standardisierten, rechtwinkligen Tafeln entworfen, die eine nach der anderen temporär auf der Baustelle vorgefertigt werden konnten. Obgleich jede Familie die Innenausstattung ihres eigenen Hauses ausführen durfte, wurde die Primärkonstruktion in organisierter Gruppenselbsthilfe erstellt, weil zum einen dazu mehr Muskelkraft erforderlich war und zum anderen die Eigenbauer dadurch voneinander lernen konnten. Durch diese Erfahrung entstand ein starkes Gemeinschaftsgefühl, noch ehe die Häuser fertiggestellt waren, und es wurde eine Nachbarschaftsbeziehung kultiviert, die immer seltener wird, weil die Menschen häufiger umziehen und für sich bleiben. Vielleicht lernt man letztlich auf einer Baustelle mehr vom normalen Leben als von guter Architektur, denn es ist eine Gemeinschaft von befreundeten Familien mit relativ geringem Einkommen entstanden, die eigene Häuser etwa zum Mietpreis einer Wohnung erwerben konnten, und die Bauten sind umweltfreundlich sowohl im Bau wie auch im täglichen Betrieb. In ästhetischer Hinsicht zeigen sie eine spartanische Eleganz.

projektdaten

fertigstellung 1999

adresse Solarsiedlung „Einfach und selber bauen“, Laarstraße, 45889 Gelsenkirchen

bauherr THS Treuhand Stelle GmbH

zusammenarbeit roland riebl

Bauausstellung IBA Emscher Park

baubeginn 1995

team

Peter Hübner

Peter Hübner

Bürogründer

p.huebner@plusbauplanung.de

Peter Hübner

Bürogründer

p.huebner@plusbauplanung.de

weitere projekte

510

WB Strandhalle Spiekeroog

Spiekeroog

2021

466

Jugendhaus Klause Rottenburg

Rottenburg am Neckar

2020

509

WB Wohn- und Geschäftshaus Haltern am See

Haltern am See

2021

280

Freie Aktive Schule Frankfurt

Frankfurt am Main

2010

543

Erweiterung FWS Leipzig

Leipzig

2023

alle projekte

Wohnsiedlung Gelsenkirchen Laarstrasse

plus bauplanung

plus bauplanung gmbh
goethestraße 44
72654 neckartenzlingen
info@plusbauplanung.de
07127 92070

impressum cookie einstellungen datenschutz

Diese Seite verwendet Cookies. Mehr Informationen und Einstellungen hier.